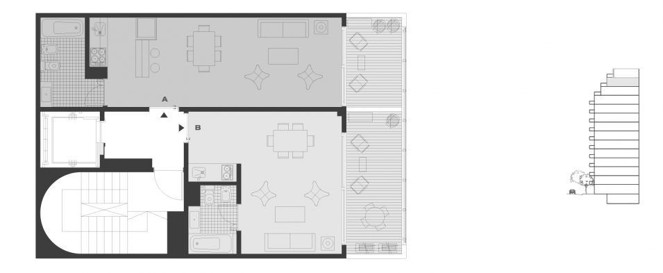
Superficies propias:
Cubierta: 43.55 m2
Semicubierta: 7.50 m2
Totales: 51.05 m2
Las imágenes y los planos pueden no concordar en su totalidad con la realidad de la construcción y están sujetos a modificaciones. El equipamiento y el mobiliario que se exhibe es meramente ilustrativo y al solo efecto de esta presentación. En la planta no están ubicados los elementos estructurales. Las superficies incluyen un 10% correspondiente a amenities y espacios comunes. Dichas superficies incluyen muros y ductos. Las superficies finales surgirán de los planos de propiedad horizontal.


desarrollos@erregroup.com.ar
+54 11 4788-8493 / 4788-8494
© 2026 Estilo Iberá 2484. Diseño: estudio krill